Vaya al Contenido

Casa Camino La Bandurria - Constructora Jofal

Saltar menú
Construcción de viviendas de lujo
Saltar menú
Construcción de viviendas de lujo
Saltar menú
Construcción de viviendas de lujo
Saltar menú
Construcción de viviendas de lujo
Saltar menú
Construcción de viviendas de lujo
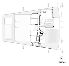
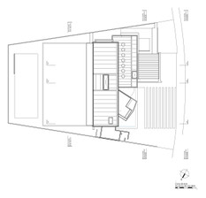
CASA CAMINO LA BANDURRIA
Proyecto: Casa Camino la Bandurria
Arquitectos: Luis Izquierdo W., Antonia Lehmann S.B,
Cliente: Antonia Lehmann
Ubicación: Lo Barnechea Santiago de Chile
Materiales:---------------
Contratista: Francisco Alvarez
Constructora: JOFAL
Fecha: 2000


MENU
Saltar menú
© Copyright  1997 - 2025 - Constructora Jofal IRL. | Todos los derechos reservados www.constructorajofal.cl  | info@construcrorajofal.cl | Fono: + 56 9 9862 5262| Av. El parque 5339 - 511 Huechuraba, Santiago de Chile, Región Metropolitana - Santiago, Chile
Construcción de viviendas de lujo
© Copyright  1997 - 2019 - Constructora Jofal IRL. | Todos los derechos reservados
© Copyright  1997 - 2019 - Constructora Jofal IRL. | Todos los derechos reservados
Regreso al contenido